Doppelhäuser Zum Hasenberg

Objektbeschreibung

Beschreibung

Neubau von 2 Doppelhaushälften als Ausbauhaus im Bestlage von Lohmar-Birk! Auf einem traumhaft gelegenen Grundstück entstehen zwei Einfamilienhäuser als Doppelhaushälften. Die Häuser werden in hochwertiger Massivbauweise errichtet. Insgesamt stehen Ihnen 4 Schlafräume, ein Badezimmer, ein Gäste-WC, ein Hausanschlussraum, eine Abstellkammer sowie ein großzügiger Wohn- Essbereich und Küchen zur Verfügung.

 

Exposé herunterladen

 

 

 

 

 

 

 

 

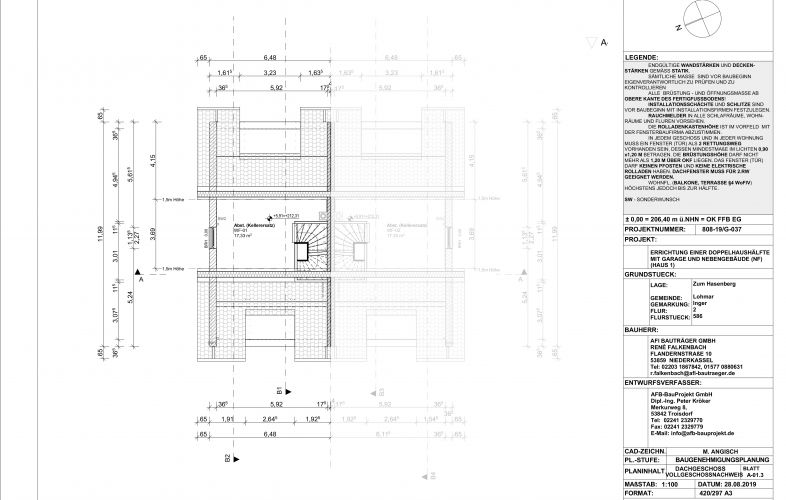
Baubeginn
2019
Grundfläche
ca. 278 m² / 281 m²
Wohnfläche
ca. 132 m²
Ausstattung
Ausbauhaus -sprechen Sie uns an-
Zimmer
4 Zimmer
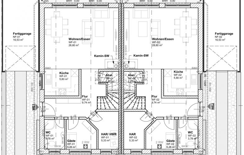
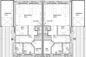
Erdgeschoss
- Flur ca. 9,74 m²
- Abstellraum ca. 1,25 m²
- Hausanschlussraum ca. 5,33 m²
- Gäste-WC ca. 3,78 m²
- Wohnen / Essen – Kochen ca. 28,60 m²
- Gästezimmer ca. 5,26 m²
- Terrasse ca. 7,05 m²
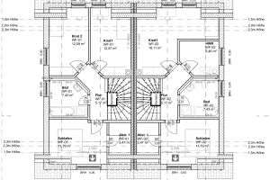
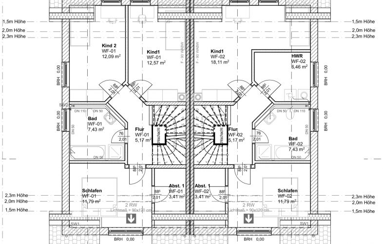
Obergeschoss
- Flur ca. 5,17 m²
- Bad ca. 7,43 m²
- Schlafen ca.11,79 m²
- Abstellraum ca. 3,41 m²
- Kind 1 ca. 12,57 m²
- Kind 2 ca. 12,09 m²

Google Maps Karte jetzt anzeigen.

Mit einem Klick auf diesen Link genehmigen Sie, dass eine Google Karte angezeigt wird, wobei Ihre IP-Adresse an Server von Google übertragen wird.

Ortsbeschreibung

 

Das Baugrundstück befindet sich in Bestlage von Lohmar, Ortsteil Birk, Zum Hasenberg (Parzelle 586). Um den alten Ortskern entstanden nach allen Richtungen neue Wohngebiete, die das Ortsbild sehr positiv veränderten. Die Grenzen zwischen Birk und dem Nachbarort Inger sind verschwunden. Für die Bedürfnisse des täglichen Lebens ist alles im Ort zu finden. Neben Ärzte und einer Apotheke befinden sich in Birk eine Bäckerei, ein Supermarkt, zwei Banken, eine Postagentur, zwei Restaurants und weitere Gewerbetriebe. Birk hat eine Kindertagesstätte der evangelischen Gemeinde Birk und eine mehrzügige Grundschule, die von den Kindern aus Birk und den umliegenden Orten besucht wird. Der Ort wird von mehreren Buslinien des Verkehrsverbundes Rhein-Sieg (VRS) angefahren, die Birk an das überörtliche Verkehrsnetz anschließen.

 

Stündlich fahren Busse in Richtung Siegburg und in Richtung Neunkirchen/Much. Auch Lohmar und weitere Orte des Stadtgebietes sind durch Linienbusse in den öffentlichen Personennahverkehr eingebunden. Nahe Birk verläuft die Kreisstraße 13 und die durch das Jabachtal führende Bundesstraße 507. Die nächsten Anschlussstellen der Bundesautobahn 3 (A3) sind in Lohmar-Nord und Lohmar-Süd. Köln und Bonn sind in 20 bzw. 15 Minuten mit dem PKW zu erreichen. Zudem verfügt Birk über ein reges Vereinsleben, angefangen vom Männerchor „Liederkranz“, verschiedenen Kanervalsvereinen und den Sportvereinen, insbesondere den TUS Birk mit der Fussball und Tennisabteilung. Fast alle Vereine sind im1984 gegründeten „Ortsring“ zusammengeschlossen.